Home
Projectos
Sobre
MCF
Equipa
História
Serviços
Contacto
Ligações
Publicações
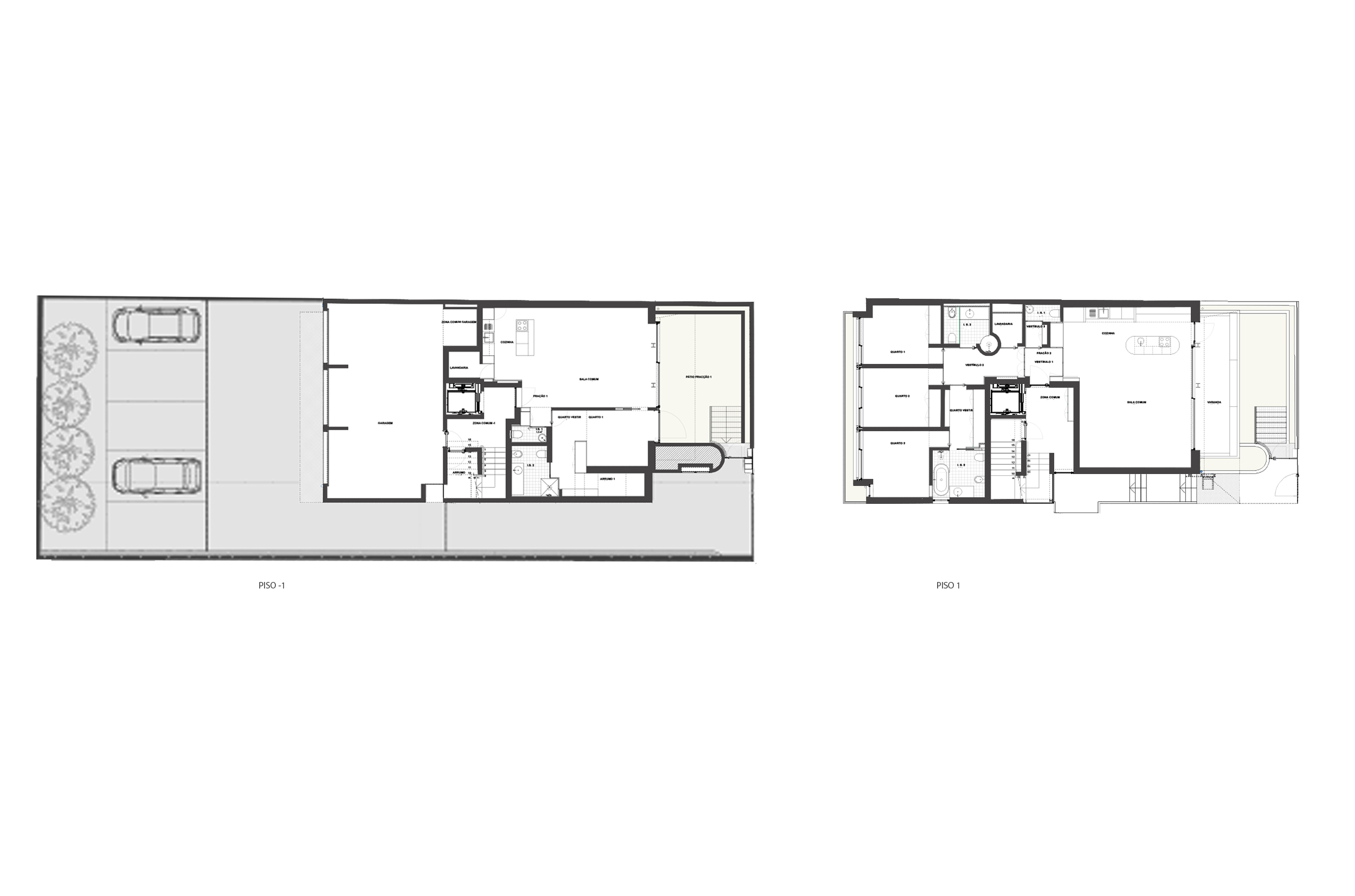
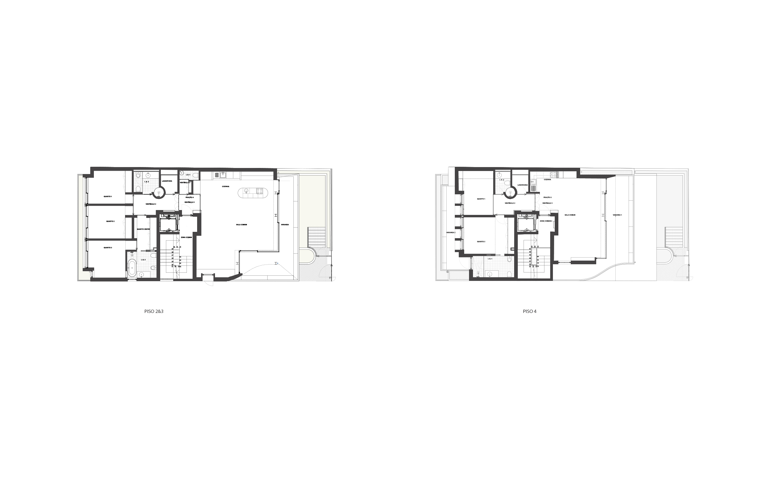
Prédio Beato Inácio Azvedo
Data:
2004-Em Curso
Cliente:
On Living Real Estate, LDA
Local:
Ramalde, Porto
Arquitecto:
André Fernandes
Colaboradores:
Marla Ribeiro | Alexandre Marques | Paulo Rebelo | Rita Granda
/