Home
Projectos
Sobre
MCF
Equipa
História
Serviços
Contacto
Ligações
Publicações
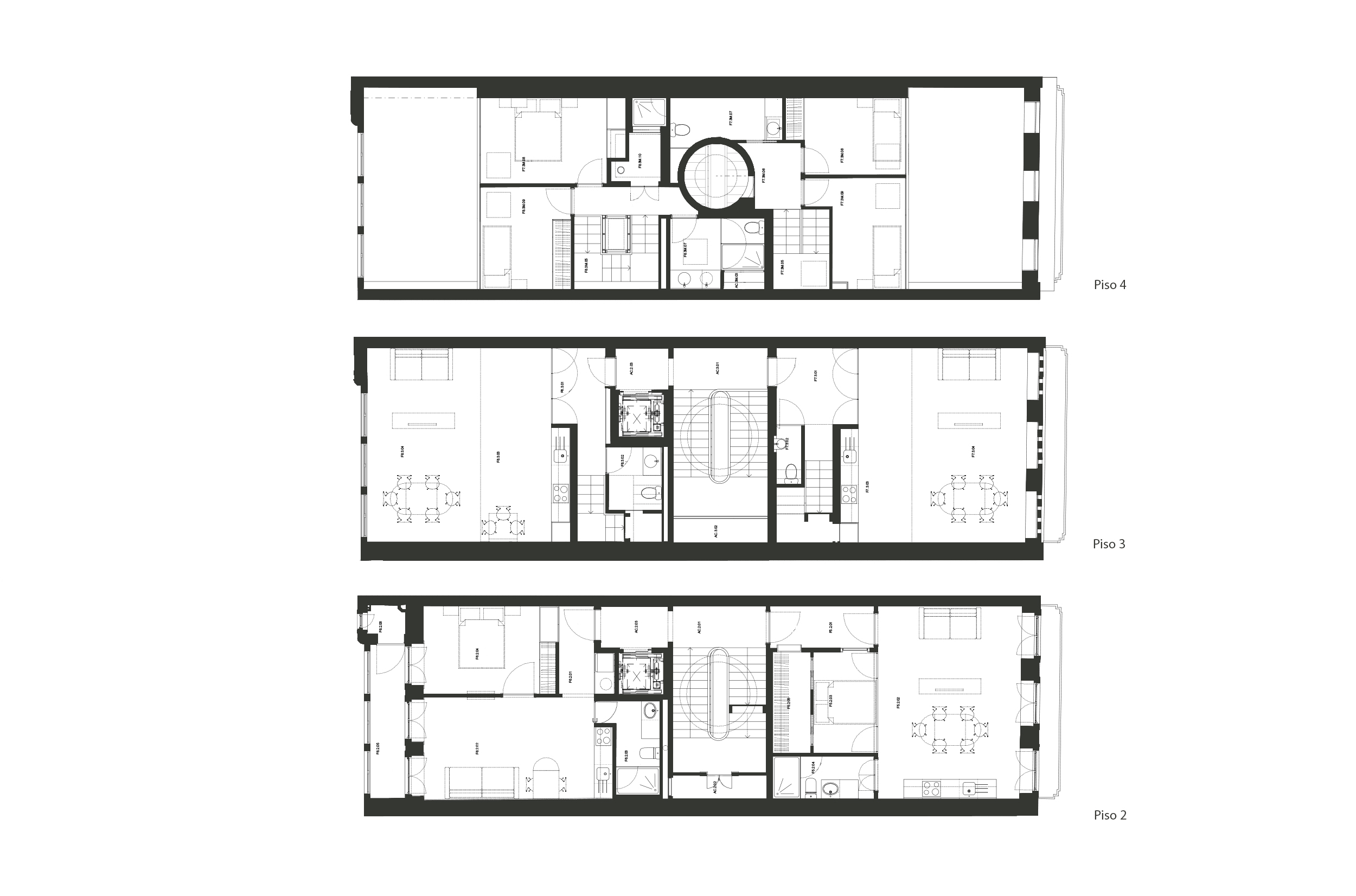
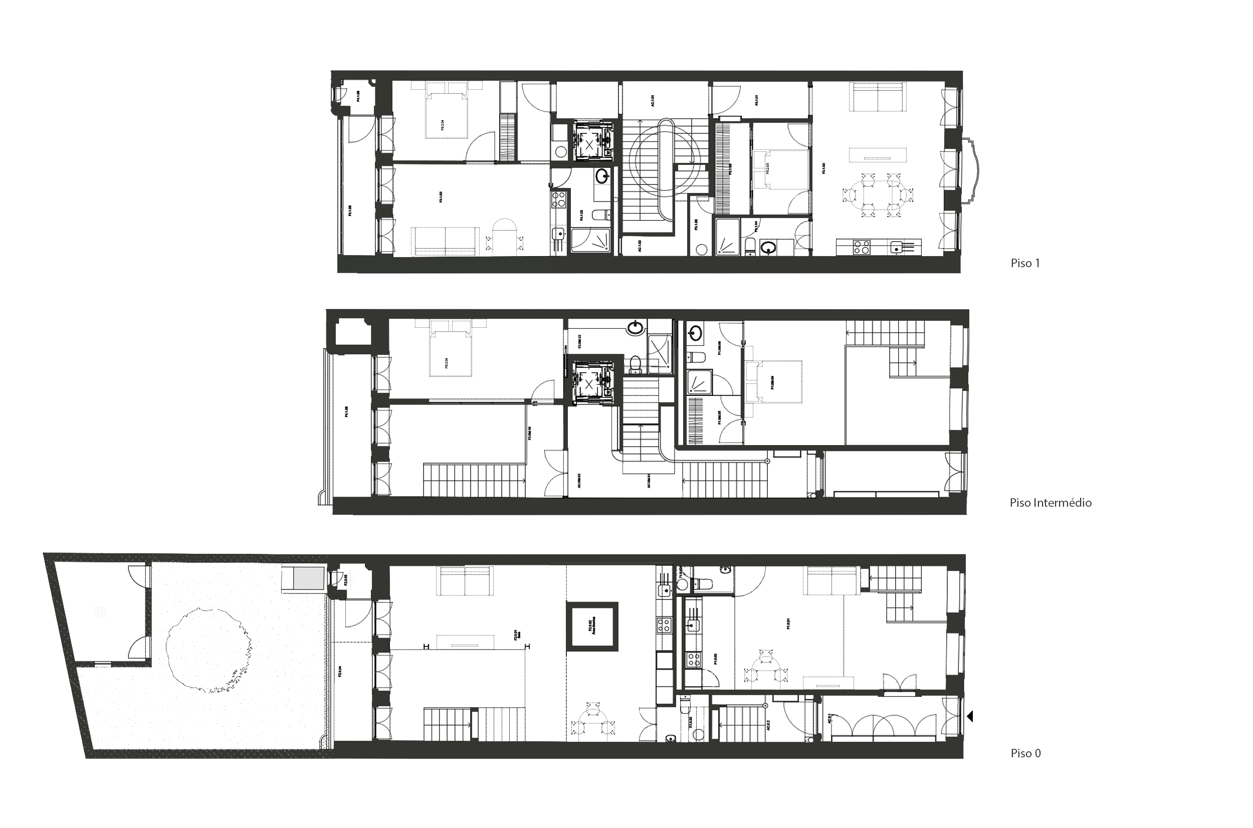
Prédio Alexandre Herculano
Data:
2015-2018
Cliente:
Favoritos Capital- Sociedade de Investimentos Imobiliários, LDA
Local:
Sé, Porto
Arquitecto:
André Fernandes
Colaboradores:
Paulo Rebelo
/