Home
Projectos
Sobre
MCF
Equipa
História
Serviços
Contacto
Ligações
Publicações
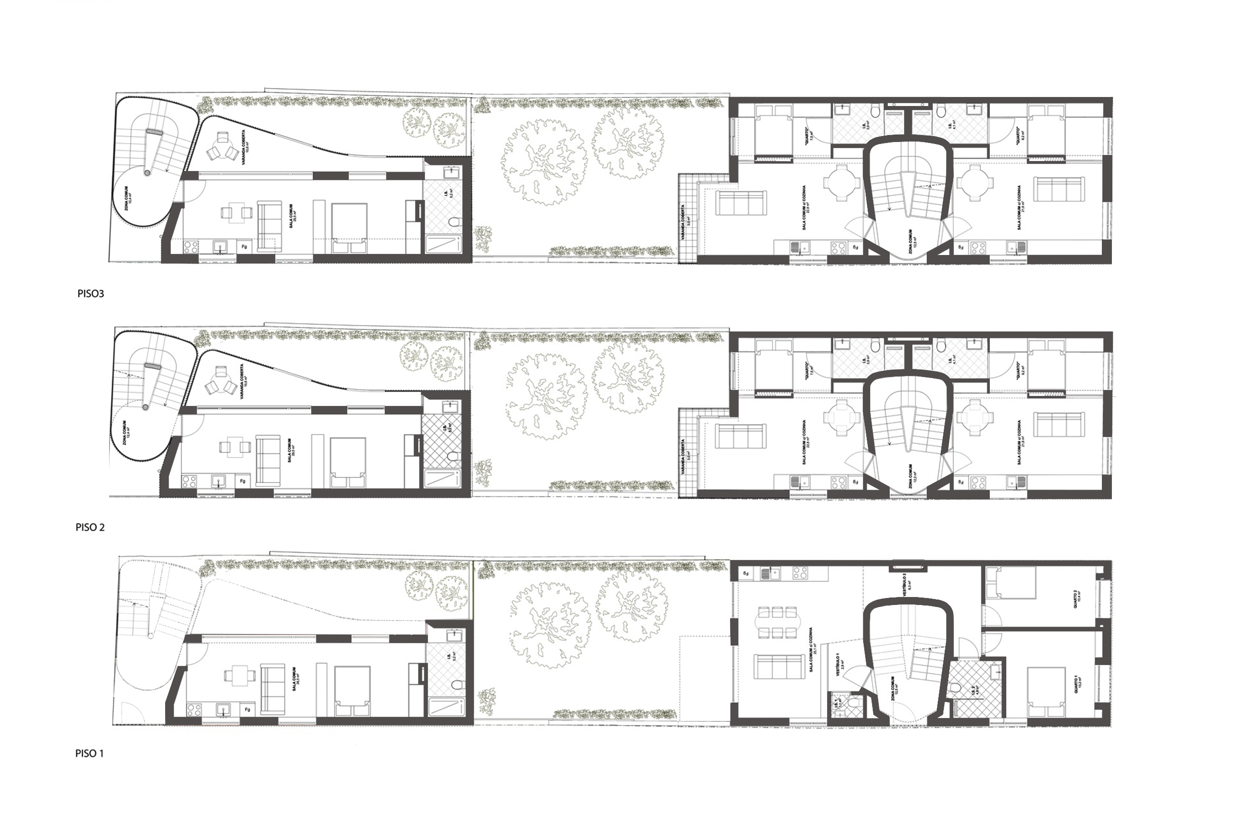
Edifício em Ramalde
Data:
2024-Em curso
Cliente:
Jangada Suspensa, LDA
Local:
Ramalde, Porto
Arquitecto:
André Cunha Fernandes
Colaboradores:
Mathilde Bauchet
/