Home
Projectos
Sobre
MCF
Equipa
História
Serviços
Contacto
Ligações
Publicações
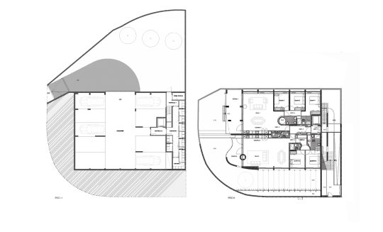
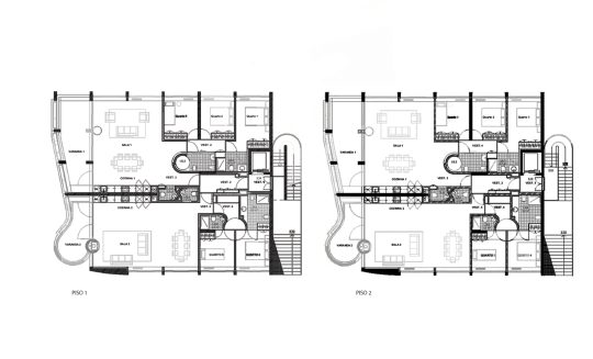
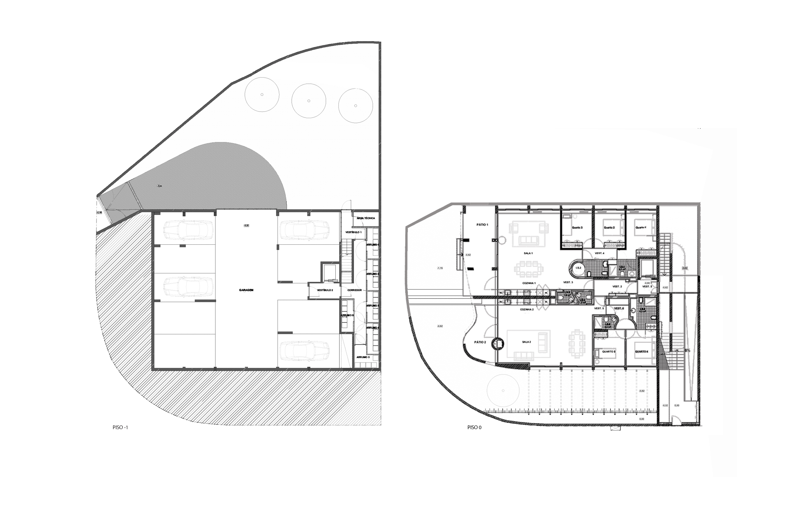
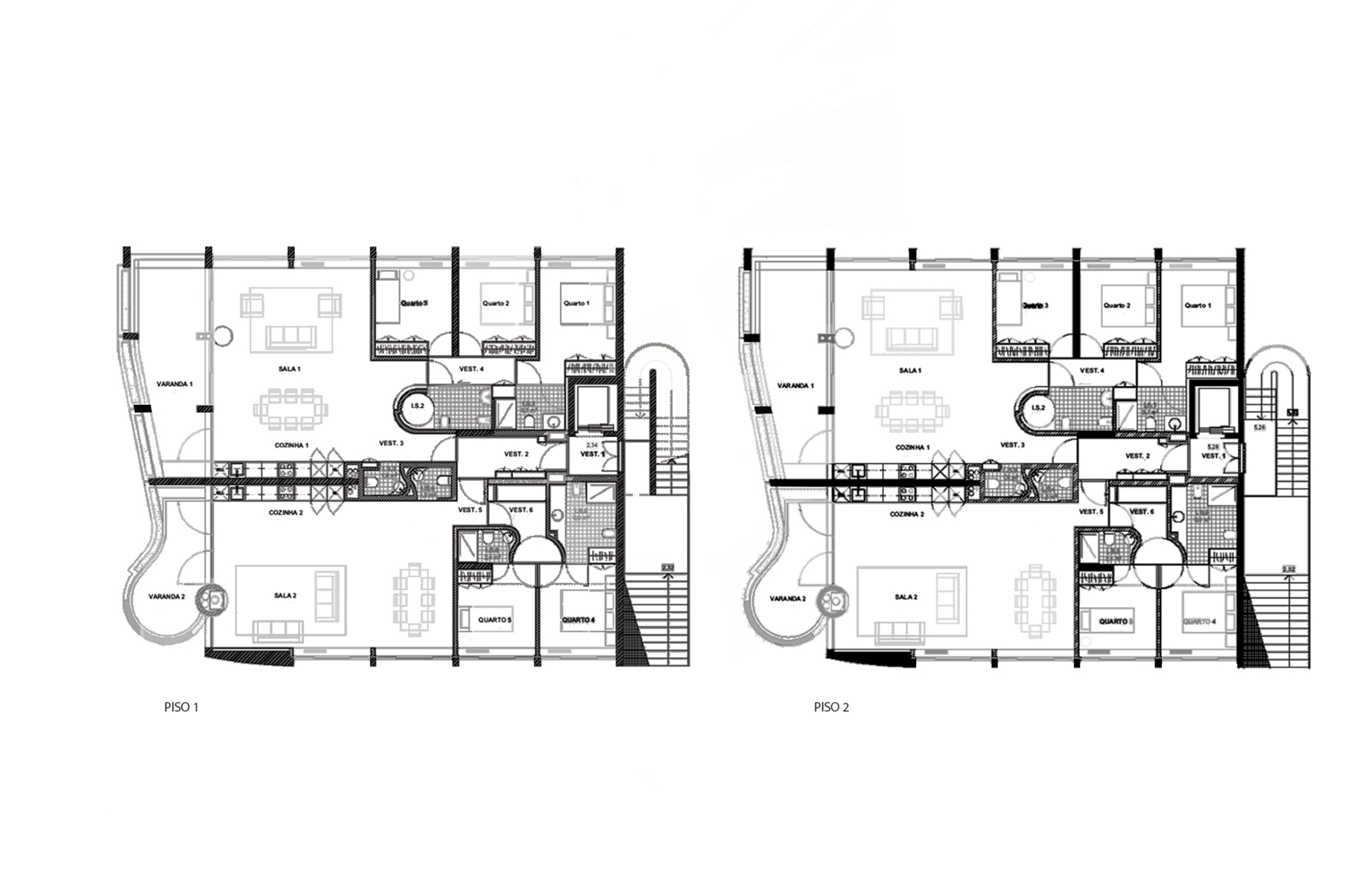
CASAS GARCIA DE ORTA
Data:
2017-2026
Cliente:
Goltor Investimentos Imobiliàrios
Local:
Rua Pinho Leal, Porto
Arquitecto:
André Fernandes
Colaboradores:
Marla Ribeiro
/