Home
Projectos
Sobre
MCF
Equipa
História
Serviços
Contacto
Ligações
Publicações
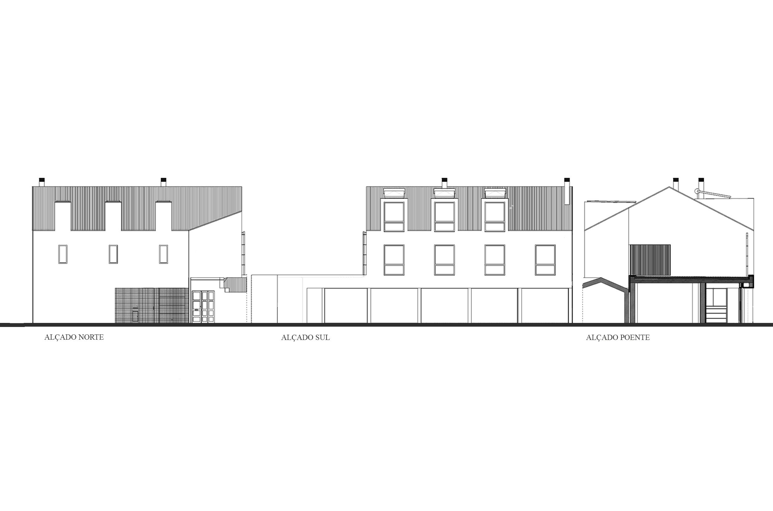
Casa na Rua de Cima
Data:
2016-2021
Cliente:
Álvaro Cabral Teixeira Bastos
Local:
Lordelo do Ouro, Porto
Arquitecto:
André Fernandes
Colaboradores:
Sara Vila Cova
/