Home
Projectos
Sobre
MCF
Equipa
História
Serviços
Contacto
Ligações
Publicações
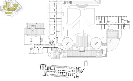
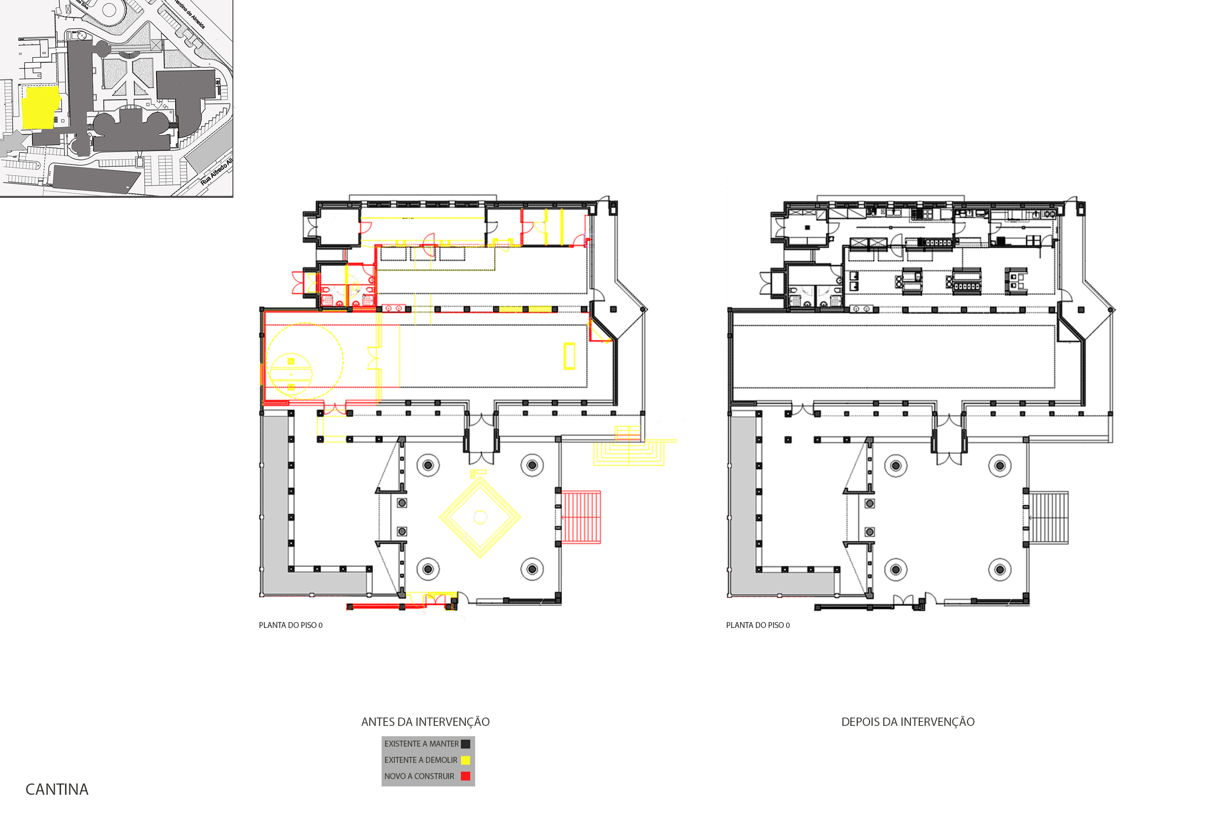
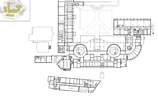
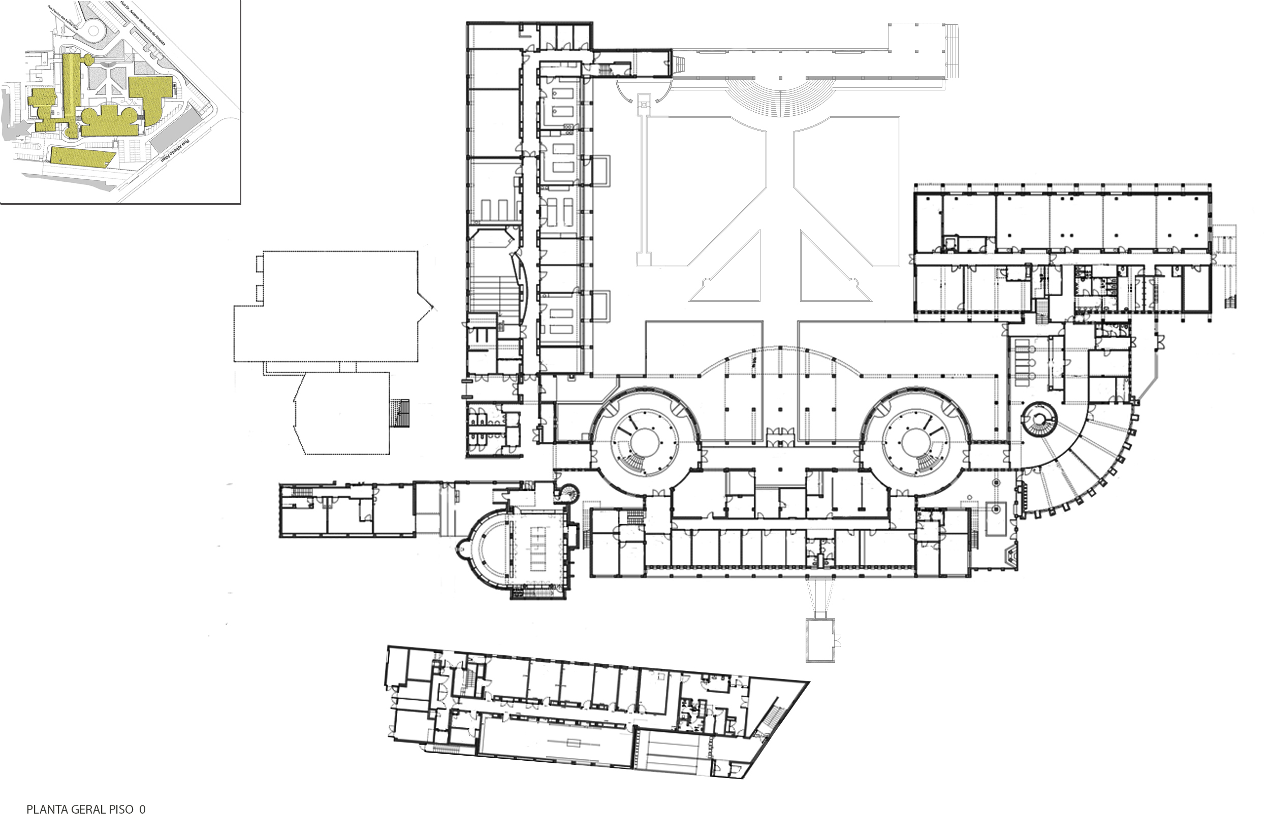
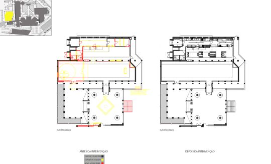
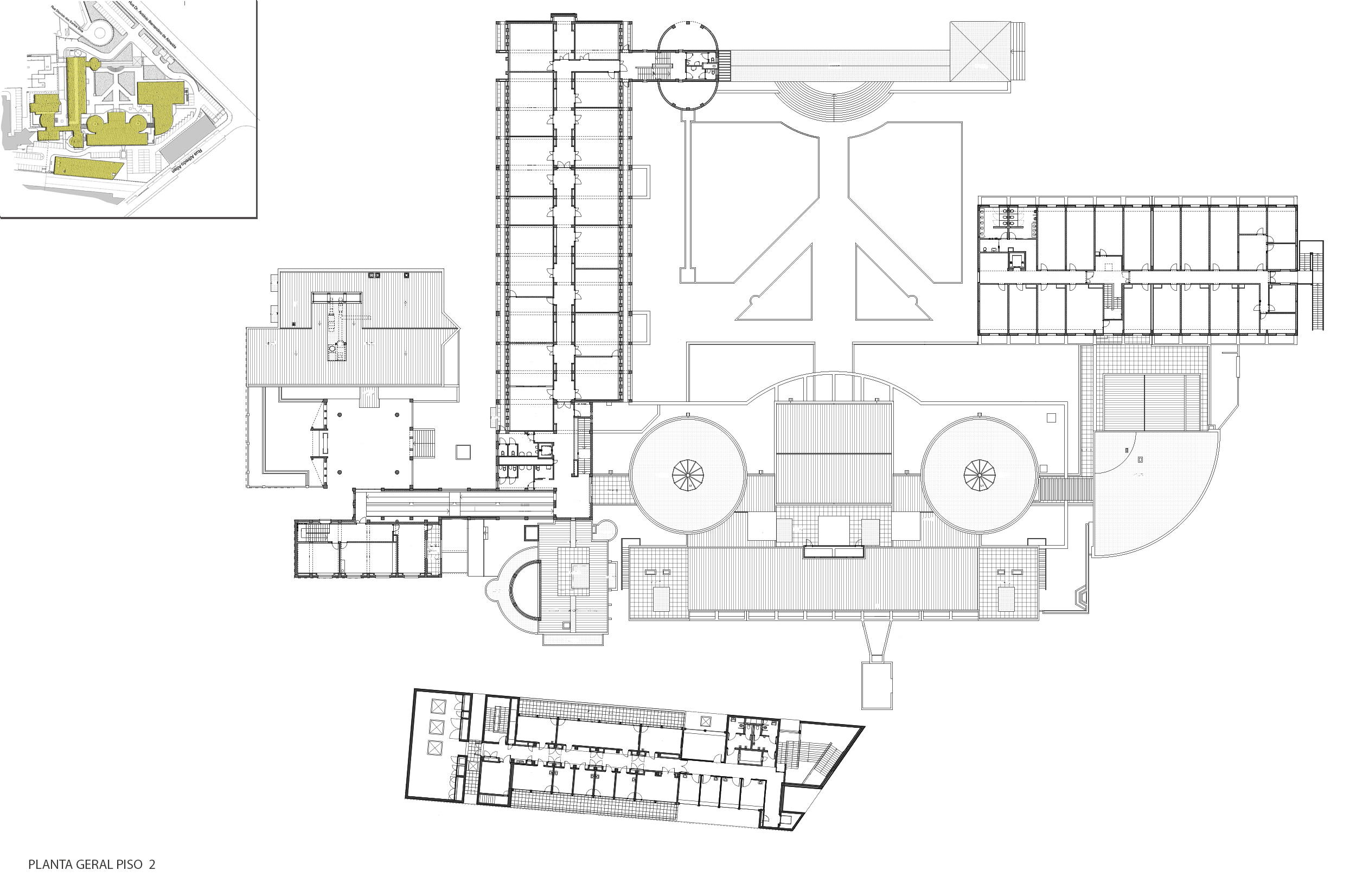
IPP – ESTSP
Data:
2013-2018
Cliente:
ESTSP
Local:
Asprela, Porto
Arquitecto:
André Fernandes
Colaboradores:
Marla Ribeiro | Afonso Faria | Paulo Rebelo
/