Home
Projectos
Sobre
MCF
Equipa
História
Serviços
Contacto
Ligações
Publicações
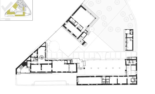
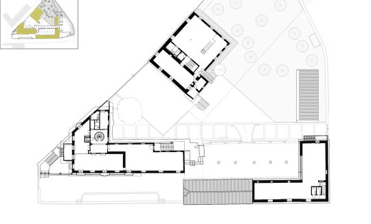
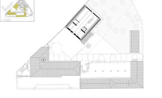
CASA DOS LEÕES
Data:
2009-Em curso
Cliente:
Família Reina
Local:
Custóias – Matosinhos
Arquitecto:
André Fernandes
Colaboradores:
Vitor Bastos | Marla Ribeiro
/