Home
Projectos
Sobre
MCF
Equipa
História
Serviços
Contacto
Ligações
Publicações
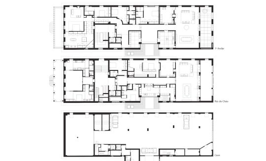
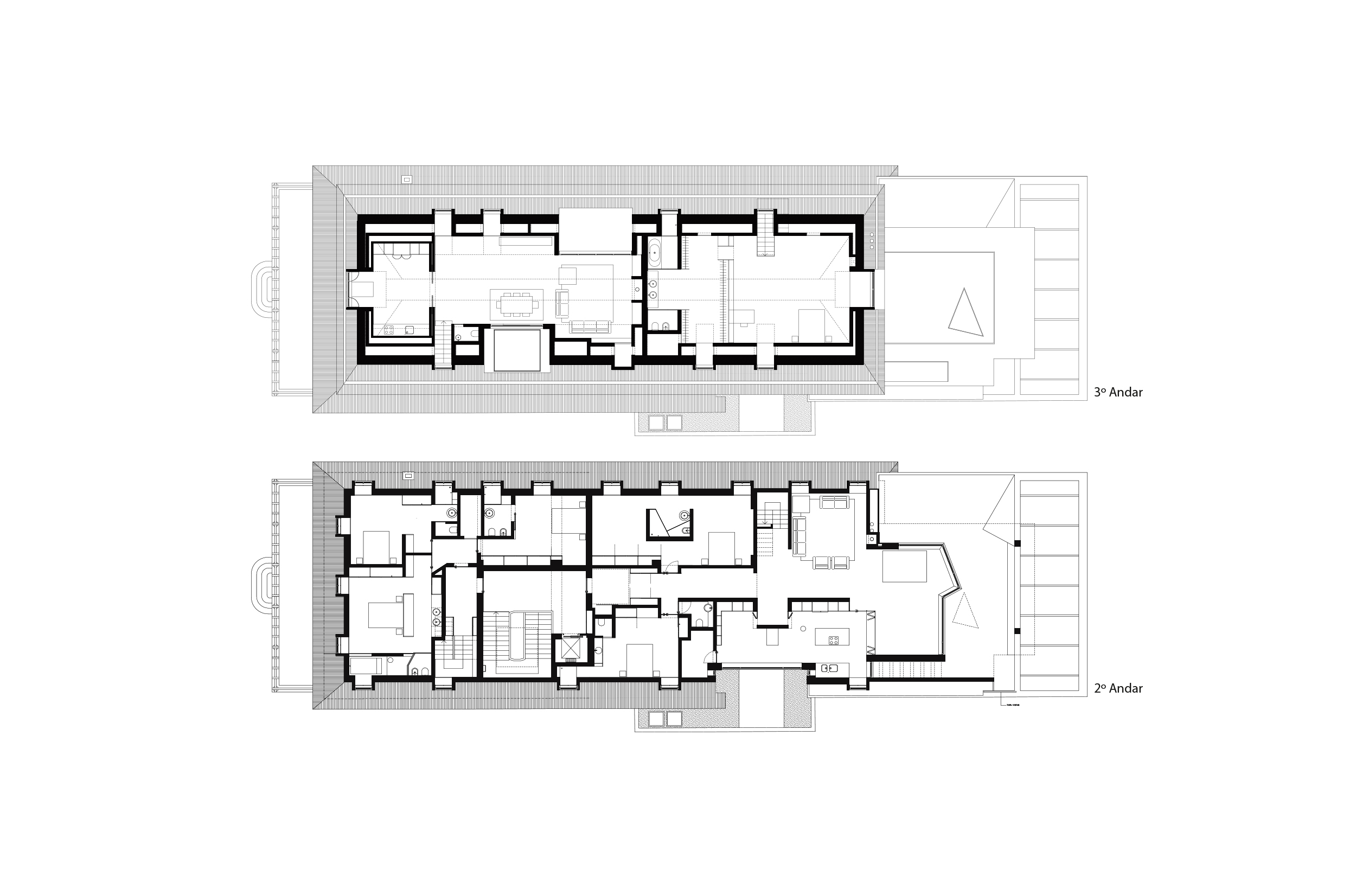
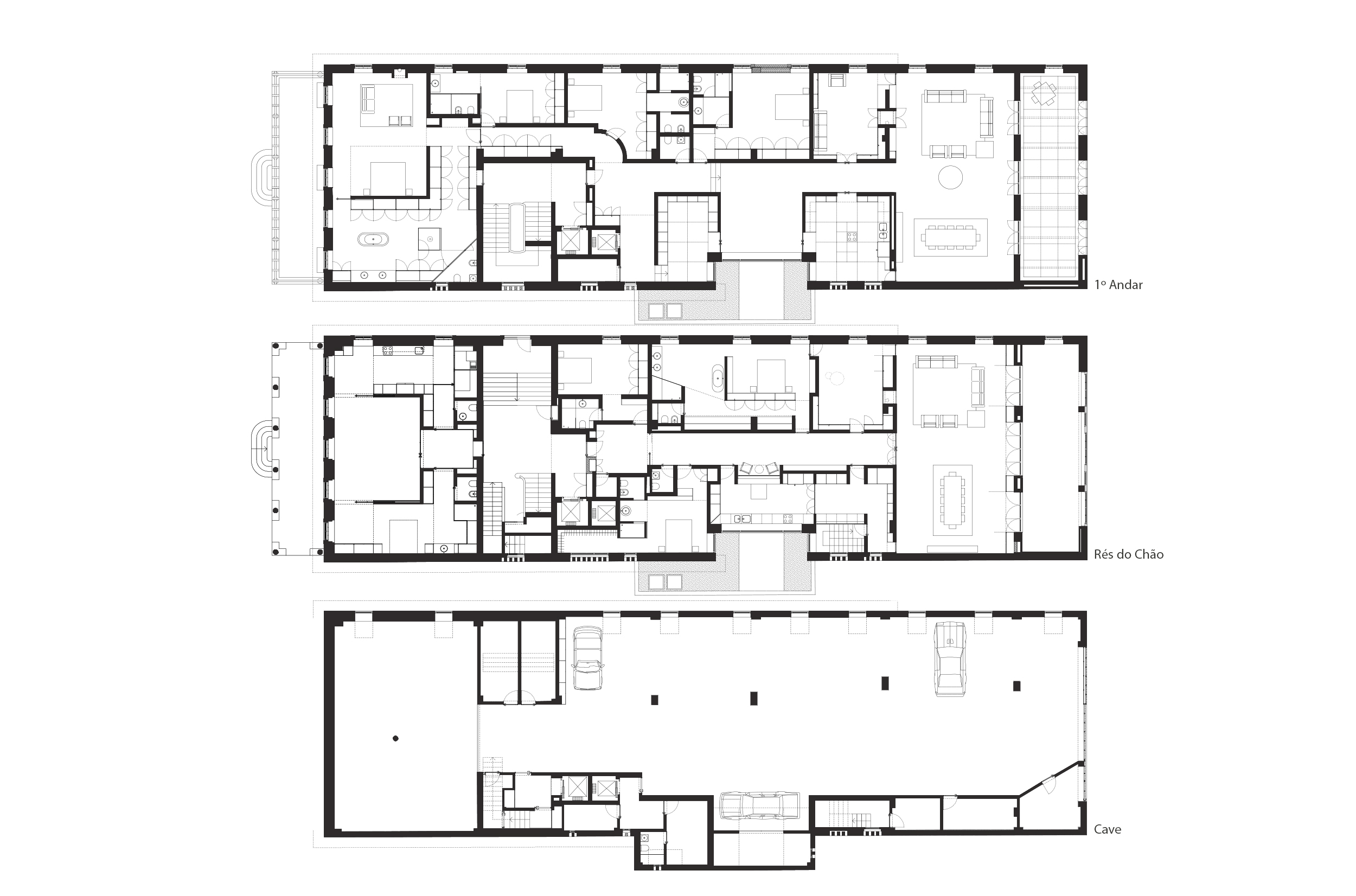
Antigo Hotel da Granja
Data:
2005-2008
Cliente:
José Luís Dias
Local:
Granja – Vila Nova de Gaia
Arquitecto:
André Fernandes
Colaboradores:
Marta Gomes | Pedro Pimentel | Carlos Machado e Moura | Marla Ribeiro
/